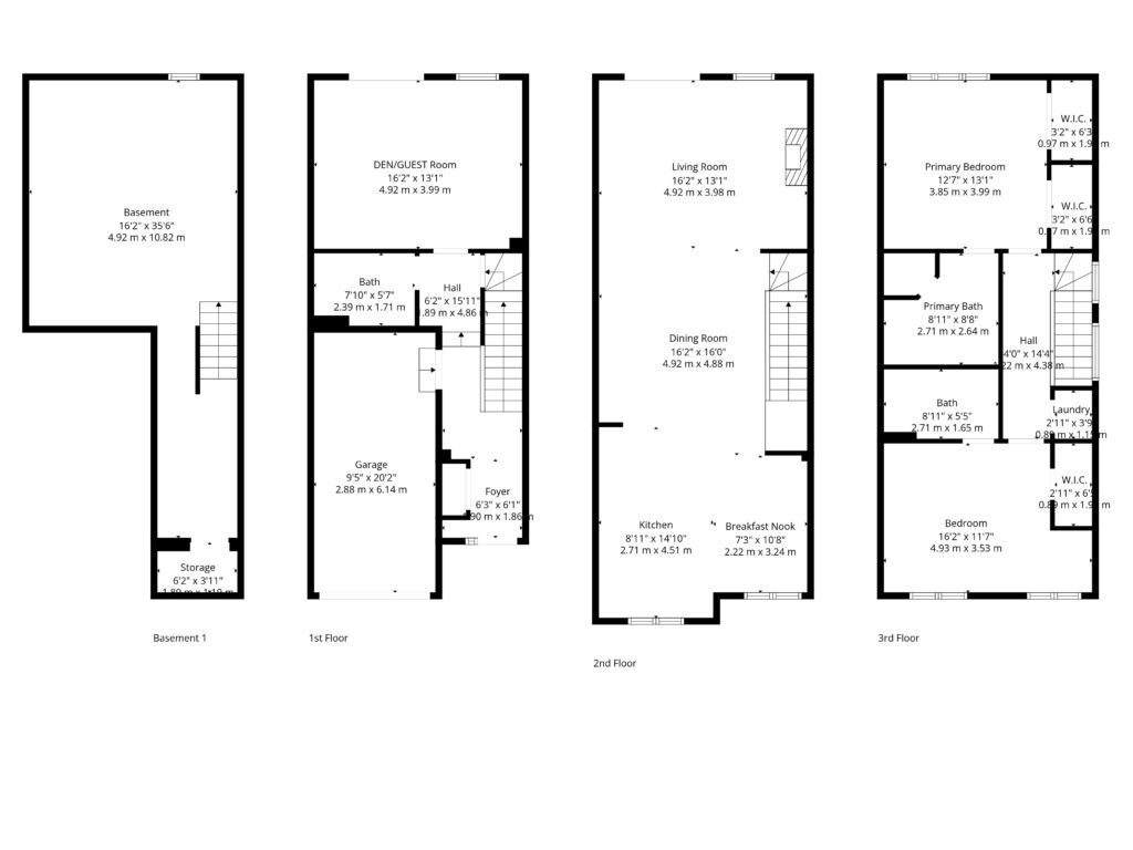
Welcome to this immaculately maintained three-level townhouse! Nestled on a quiet street in the sought-after Lakeview pocket, this home backs directly onto Lakeview Golf Course. On the main floor a welcoming foyer provides convenient access to the garage, with additional driveway parking for guests. This level features a versatile den/bedroom with a walk-out to the backyard, A 4-piece bathroom also adds flexibility for guests or multi-generational living. On the second floor the bright and airy kitchen is beautifully appointed with s.s appliances, quartz countertops, porcelain floors, a luxurious marble backsplash, u/m s.s steel sink, pot lights, and a spacious breakfast nook that can easily function as a cozy family room. The dining area showcases , modern lighting, and gleaming hardwood floors with ample space to host memorable family dinners. Entering the inviting living room, it features custom built-in millwork, a gas fireplace, pot lights – all flowing seamlessly to the sun deck complete with a gas BBQ hookup, ideal for summer entertaining. Upstairs on the third floor the spacious primary retreat offers double step in closets, hardwood floors, and two windows. The primary ensuite includes a stand-up shower, soaking tub, and a quartz-topped vanity w undermount sink. The second bedroom is bright and airy with large windows, hardwood floors, and its own private bathroom featuring porcelain floors, a soaker tub, and vanity with quartz top and undermount sink – offering comfort and privacy for family or guests. Last but not least down to the basement! The unfinished basement includes a cold room and presents a blank canvas to design the additional living space of your dreams – whether a gym, office, recreation room, or in-law suite. This home is ideally positioned between Long Branch GO and Port Credit GO making commuting effortless. You’re also just moments to Sherway Gardens , Port Credit, Mimico, Lake Ontario, and quick access to the QEW.
1129 Haig Blvd
Unit 3
NEW LOWER PRICE! Executive Three Level Townhouse in Lakeview!
For Sale







































