!!JUST LISTED!! 66 Compass Way
Welcome to 66 Compass Way! Nestled in the heart of Port Credit, where sophisticated design meets modern comfort in one of Mississauga’s most sought-after lakeside communities.
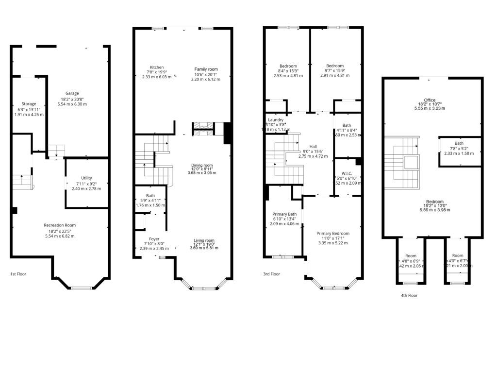
The main floor welcomes you with a bright front foyer featuring elegant porcelain flooring. A stylish powder room showcases a European-inspired wall-mounted sink and faucet paired with designer wall sconces. The spacious living room is highlighted by a beautiful bay window, crown molding and rich engineered mahogany flooring. Entertain with ease in the formal dining room, complete with a striking double-sided gas fireplace. The chef’s kitchen with custom Scavolini sleek lacquered cabinetry, white quartz countertops, a glass backsplash and an oversized island. The inviting family room boasts a double-sided glass fireplace and a walkout to the back patio area with mature trees. The second level offers a thoughtfully designed layout. The primary bedroom features a bright bay window, custom walk-in closet and walkout to a private balcony. The spa-inspired 4-piece ensuite includes a whirlpool tub, wall-hung vanity, glass tiles and a spacious shower. Two additional bedrooms offer large windows and generous closet space, complemented by a stylish 4-piece main bathroom. Convenient second-floor laundry adds to the home’s functionality. The third level provides incredible versatility with an additional bedroom or recreation space, complete with custom closets seamlessly integrated into the dormers with custom designed glass doors. A separate office area perfect for working from home leads to your own private upper terrace. The fully finished basement offers direct access to underground parking and your own private garage which also has two extra spaces.
Located just steps from Port Credit’s vibrant waterfront, enjoy easy access to marinas, scenic walking trails, shopping, dining, and public transit, including the upcoming Hazel McCallion LRT. This exceptional home offers the perfect blend of luxury, convenience, and lifestyle.












































































