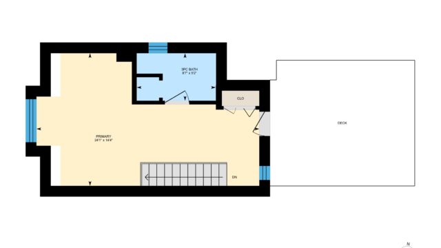
Sun Fills This Rarely Offered End Unit Annex Beauty From 3 Sides! 1859 Sq Ft Of Living Space + The Basement. Features Include: Soaring 10′ Ceilings On Main Floor & Flat Ceilings Throughout. Spacious 3rd Floor Loft W/3 Pc En-Suite, Skylight & W/O To Sunny 15’X 13′ Rooftop Deck. Updated Kitchen W/Granite Counters, Custom Range Fan, Hardwood Floors, Bathrooms On Every Level (Excl Bsmt), Exposed Brick, Large Family Rm On Second Fl, Partly Finished Bsmt W/Sep Entrance & Ample Storage. Low Maint Turf In Back Yard. Corner Lot With Parking. Shops, Restaurants, Bloor Street & Subway Transit Steps Away! Property Is Virtually Staged
747 Euclid Avenue
Rare Annex Beauty On Corner Lot Steps From Bloor Street
Sold













































